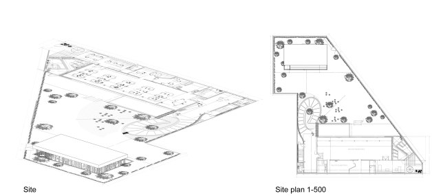
For the “archivo de diseño” foundation in Mexico City, instead of putting up a building in the garden, we proposed exploring the garden itself. Creating a space without taking away from it.
Imagine lifting up the designated area, and finding a place underneath, illuminated by hundreds of slim perforated columns that seem to be the roots of the garden above it.
Three steps that lead you into this space automatically serve as places to sit and see what´s going on, tables hanging from the columns as places to have a drink, standing up.
Or maybe you could stay outside; something might be happening on the elevated garden that now serves as a stage.
Many things can happen.
And when it´s time for something new, just take out those building elements, use them for something else, and put the garden back in its place.
Made for the “Pabellón Archivo” competition (archivonline.org/concursopabellon/)








